
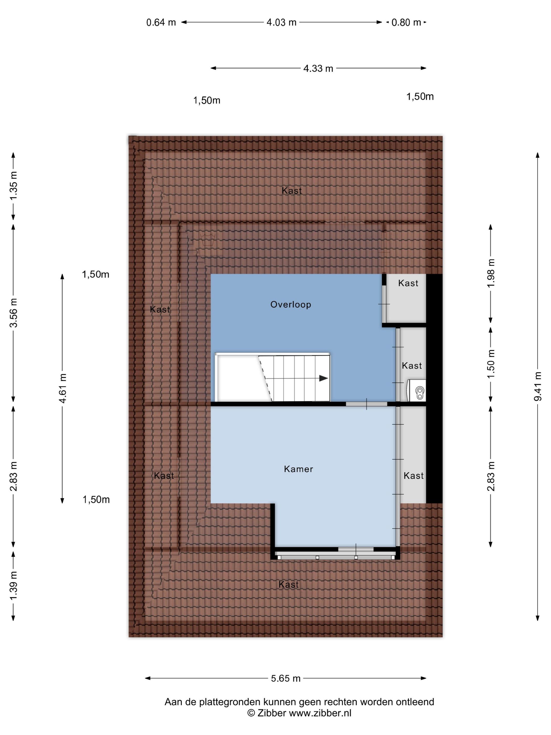
Let op: genoemde prijs betreft een bieden vanaf prijs. In een rustige straat en in de geliefde wijk De Munten II staat deze goed onderhouden geschakelde 2-onder-1-kap woning. Je hebt hier volop ruimte en comfort met een zeer brede garage, 4 (slaap)kamers, een sfeervol in te richten woongedeelte en een fijne tuin op het oosten. Hier woon je op loopafstand van het kleinschalige winkelcentrum van Dronten-west, waar je alle belangrijke voorzieningen kunt vinden. Dit zou zomaar eens jouw nieuwe droomwoning kunnen zijn! Indeling: Begane grond: Binnenkomst in de hal met de binnendoor naar de garage, de trapopgang naar de 1e verdieping, de meterkast, de toegang tot de keukenwoonkamer en de toiletruimte, die is betegeld in een neutrale kleurstelling en is voorzien van een staand toilet en een fonteintje. Zittend aan de eettafel kijk je de straat in door de grote raampartijen. Wat een licht komt hier binnen! De eethoek staat in open verbinding met de keuken, die in een U-opstelling is uitgevoerd. De aanwezige inbouwapparatuur betreft een koelkast, een vaatwasser, een combimagnetron, een 4-pits keramische kookplaat en een afzuigschouw. Een leuk detail is het hoekkozijn, waardoor je altijd wat te kijken hebt als je in de keuken staat! De woonkamer is tuingericht en biedt de ruimte voor het plaatsen van verschillende meubels. Je treft hier verder een praktische trapkast, een mooie houten vloer en dubbele openslaande deuren naar de tuin. De zeer brede garage geeft volop mogelijkheden om een auto binnen te zetten of een hobby uit te oefenen. Het kan qua ruimte zelfs allebei! De voorzieningen die je hier treft zijn elektra, water, een gootsteen, een deur naar de tuin en dubbele deuren naar de oprit. 1e Verdieping: Vanaf de ruime overloop zijn de 3 slaapkamers, de vaste trapopgang naar de 2e verdieping en de badkamer bereikbaar. De slaapkamers zijn stuk voor stuk ruimtelijk en goed in te delen met een bed en een (kleding)kast. Zo is er voor ieder gezinslid een fijne plek! Op de overloop en in de slaapkamers is eenzelfde laminaatvloer aanwezig, wat het geheel een rustige uitstraling geeft. De badkamer is van vloer tot plafond betegeld in een lichte kleurstelling en is ingericht met een douche met glazen deur, een ligbad, een designradiator, een wastafel met meubel en een toilet. De 1e verdieping is nagenoeg volledig voorzien van handmatig bedienbare rolluiken. 2e Verdieping: Neem de vaste trap en je bereikt de voorzolder van de 2e verdieping. Wat een fijne ruimte heb je hier nog tot je beschikking! Berg lekker veel spullen op in de vaste kasten en droog hier je was: hier bevindt zich namelijk ook de aansluiting voor de wasmachine. Verder tref je hier de omvormer voor de zonnepanelen en de cv-installatie, netjes weggewerkt achter 1 van de schotten. Aansluitend is de 4e kamer bereikbaar, die dankzij de dakkapel over veel ruimte en daglicht beschikt. Perfect om te gebruiken als thuiswerkplek of die extra slaapkamer! Tuin: Via de dubbele openslaande deuren in de woonkamer stap je de achtertuin in. Deze is goed in balans met een fijne dosis groen en bestrating. Dankzij de maatvoering heb je de mogelijkheid meerdere zitjes te creren en te ontspannen met familie en vrienden. De ligging op het oosten maakt dat het er al vroeg op de dag lekker zonnig is en er ook een handmatig bedienbaar zonnescherm aanwezig is. Bijzonderheden: * Deze woning heeft energielabel A * Goed onderhouden woning met veel ruimte binnen- en buitenshuis * Gelegen in een geliefde en gemoedelijke wijk * Ruime oprit en garage * Aanvaarding in overleg * Verkopende makelaar: De Makelaars van 5VOOR12 of neem je eigen NVM aankoopmakelaar mee!
| Ogólne informacje | |
| Cena | 500.000 € |
| Status | Sprzedany |
| akceptacja | In overleg |
| Nieruchomość | |
| Rodzaj | Eengezinswoning, geschakelde 2-onder-1-kapwoning |
| Rodzaj budownictwa | Bestaande bouw |
| Rok budowy | 2001 |
| Rodzaj dachu | Schilddak bedekt met bitumineuze dakbedekking en pannen |
| Specyficzna budowla | Gedeeltelijk gestoffeerd |
| Powierzchnie i zawartość | |
| Powierzchnia | 133 m2 |
| Pozostałe miejsca wewnątrz | 31 m2 |
| powierzchnia na zewnątrz należąca do budynku | 5 m2 |
| Powierzchnia działki | 313 m2 |
| Cała powierzchnia | 583 m2 |
| Podział | |
| Ilość pokoi | 5 kamers (3 slaapkamers) |
| Ilość łazienek | 1 badkamer en 1 apart toilet |
| Wyposażenie łazienki | Douche, ligbad, toilet, wastafel, en wastafelmeubel |
| Ilość pięter | 3 woonlagen en een vliering |
| Wyposażenie | Balansventilatie, buitenzonwering, glasvezelkabel, rolluiken, zonnecollectoren, en zonnepanelen |
| Energia | |
| Typ | A |
| Izolacja | Dakisolatie, dubbel glas, muurisolatie, vloerisolatie en volledig gesoleerd |
| Ogrzewanie | Cv-ketel en warmte terugwininstallatie |
| Ciepła woda | Cv-ketel |
| bojler | Nefit (gas gestookt combiketel uit 2010, eigendom) |
| Dane katastralne | |
| Powierzchnia | 313 |
| Struktura własnościowa | Volle eigendom |
| Przestrzeń na zewnątrz | |
| Lokalizacja | Aan rustige weg en in woonwijk |
| Ogród | Achtertuin en voortuin |
| Podwórko na zewnątrz | 120 m2 (12,72 meter diep en 9,42 meter breed) |
| Ekspozycja ogrodowa | 120 m2 (12,72 meter diep en 9,42 meter breed) |
| Dodatkowe rozmieszczenie |
| Garaż | |
| Wyposażenie | Elektra en stromend water |
| Typ | Aangebouwde stenen garage |
| Pojemność garażu | 1 auto |
| Izolacja | Dakisolatie |
Podaj kilka danych, aby za darmo sprawdzić jaką maksymalną kwotę kredytu hipotecznego możesz otrzymać.