
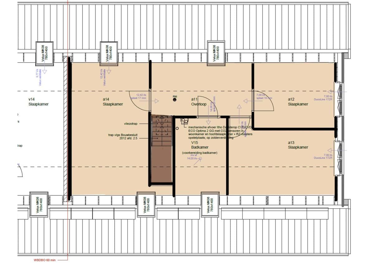
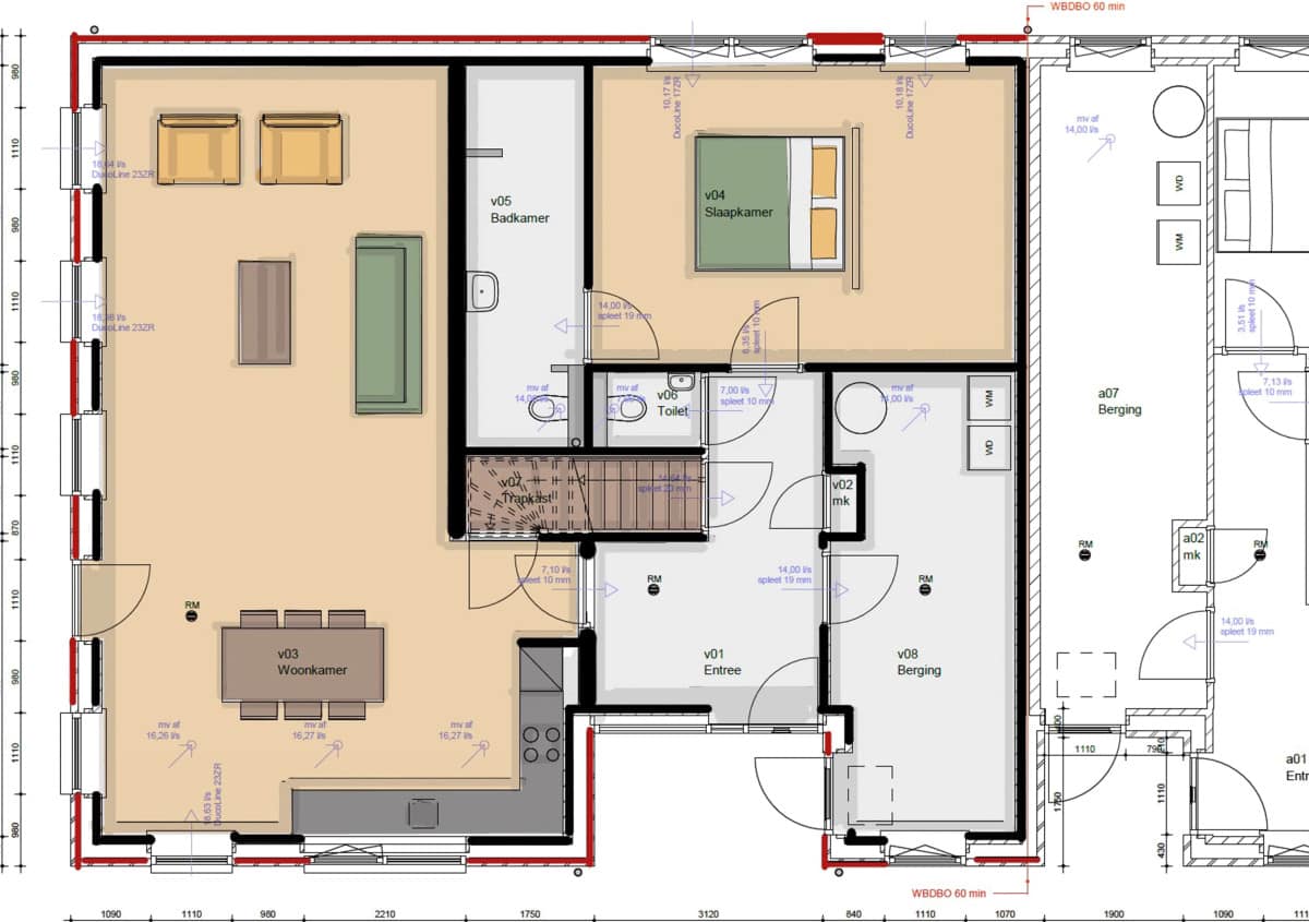
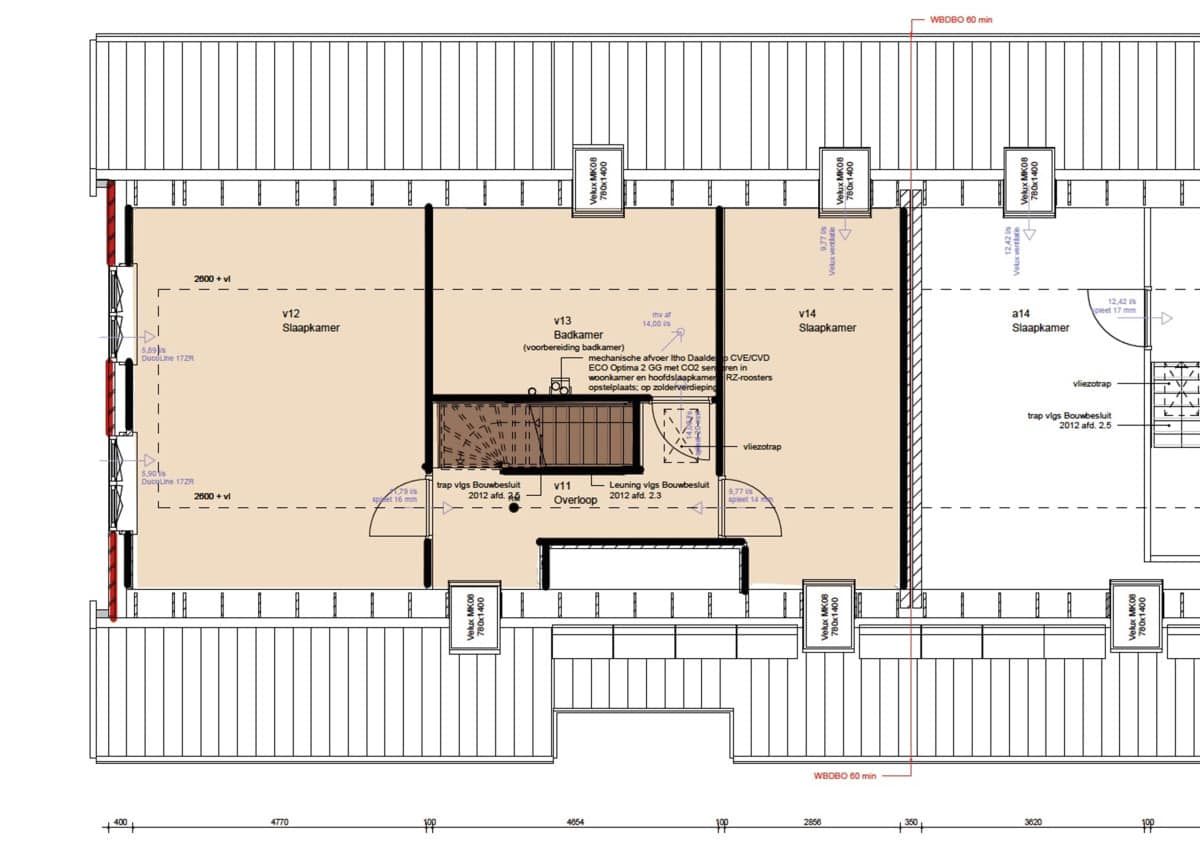
Benieuwd naar wonen in het gloednieuwe Dunninkserf? -EXTRA ACTIE Schrijf je in voor een woning en ontvang een luxe kookkraan cadeau t.w.v. 1.500! Bekijk de actievoorwaarden voor deelname. Genoemde prijs is voor woning 9 en is een CASCO prijs. De bouw is gestart! oplevering medio maart 2026 Ook interesse in een van deze mooie woningen enof appartementen? Bel of mail voor meer informatie. Ontdek Woonproject DUNNINKSERF Wonen met karakter en comfort Welkom bij DUNNINKSERF, een uniek nieuwbouwproject met een rijke historie, ideaal gelegen nabij het centrum, uitvalswegen, scholen en winkels. Hier woon je in alle rust, zonder in te leveren op bereikbaarheid en gemak. Het plan omvat in totaal 10 karakteristieke woningen, met een bijzondere mix van authentieke charme en moderne duurzaamheid. Een thuis voor wie op zoek is naar kwaliteit, comfort en een fijne leefomgeving. De indeling van het project: Oude boerderij: wordt stijlvol verbouwd tot vier woningen: een voorhuis, twee tussenwoningen en een achterhuis. Achter de boerderij: komt een schuurwoning met vier appartementen, waarvan twee verkocht zijn en een onder optie is. Naast de boerderij: wordt een vergelijkbare boerderij gerealiseerd met een twee-onder-een-kapwoning, waarvan n woning verkocht is. Dit is jouw kans om te wonen op een plek waar historie en hedendaags wonen samenkomen. Laat je verrassen door de ruimte, sfeer en kwaliteit van deze bijzondere woningen. Let op: De genoemde prijzen zijn vanaf prijzen. Wacht niet te lang maak van DUNNINKSERF jouw nieuwe thuis! Bouwnummer 9 Ruime en duurzame boerderijwoning aan de voorzijde Een eigentijdse woning met karakter, gebouwd volgens de nieuwste kwaliteitseisen Bouwnummer 9 is de voorste woning van de twee onder een kap. Deze woning is ontworpen als een stijlvolle boerderijwoning, passend bij de traditionele bebouwing in de streek. Gebouwd met hoogwaardige materialen en conform de nieuwste bouw- en isolatienormen, biedt deze woning optimaal comfort en duurzaamheid. De woning beschikt over een ruime, gecombineerde woonkamer en keuken van ca. 56 m2. Daarnaast is er een royale slaapkamer van ca. 23 m2 en een inpandige berging van 15 m2, ideaal voor opslag en praktische doeleinden. Op de verdieping is ruimte voor meerdere slaapkamers en een tweede badkamer, zodat u de woning naar wens kunt indelen en uitbreiden. Kenmerken: Vloeroppervlakte: ca. 185 m2 Inhoud: ca. 800 m Perceeloppervlakte: ca. 684 m2 (waarvan ca. 100 m2 gemeenschappelijke steeg) Ruime woonkamerkeuken van 56 m2 Grote slaapkamer van 23 m2 Inpandige berging van 15 m2 Meerdere slaapkamers en tweede badkamer op de verdieping Hoogwaardige materialen en moderne isolatie Bouwnummer 10 (VERKOCHT) Ruimtelijke twee-onder-een-kap woning achteraan Comfortabele gezinswoning met veel leefruimte en mogelijkheden Bouwnummer 10 is de achterste woning van de twee onder een kap. Deze woning biedt een ruime woonkamer met open keuken van ca. 60 m2, een ruime slaapkamer van ca. 19 m2 met een direct aangrenzende badkamer. Op de verdieping is er ruimte voor meerdere slaapkamers en een tweede badkamer, zodat u de indeling flexibel kunt aanpassen aan uw woonwensen. Kenmerken: Vloeroppervlakte: ca. 185 m2 Inhoud: ca. 800 m Perceeloppervlakte: ca. 562 m2 (waarvan ca. 49 m2 gemeenschappelijke steeg) Ruime woonkamerkeuken van 60 m2 Slaapkamer van 19 m2 met aangrenzende badkamer Meerdere slaapkamers en tweede badkamer op de verdieping Gebouwd volgens de nieuwste bouwnormen en met hoogwaardige materialen
| Ogólne informacje | |
| Cena | 490.000 € |
| Cena wywoławcza | 450.000 € |
| Status | dostępny |
| akceptacja | In overleg |
| Nieruchomość | |
| Rodzaj | Woonboerderij, 2-onder-1-kapwoning |
| Rodzaj budownictwa | Nieuwbouw |
| Rok budowy | Na 2020 |
| Rodzaj dachu | Zadeldak bedekt met pannen |
| Specyficzna budowla | Monumentaal pand |
| Powierzchnie i zawartość | |
| Powierzchnia | 185 m2 |
| Powierzchnia działki | 562 m2 |
| Cała powierzchnia | 800 m2 |
| Podział | |
| Ilość pokoi | 8 kamers (4 slaapkamers) |
| Ilość pięter | 1 woonlaag |
| Wyposażenie | Balansventilatie, dakraam, mechanische ventilatie, schuifpui, TV kabel, zonnecollectoren, en zonnepanelen |
| Energia | |
| Typ | Niet |
| Izolacja | Dakisolatie, driedubbel glas, dubbel glas, eco-bouw, HR-glas, kierdichting, muurisolatie, vloerisolatie en volledig gesoleerd |
| Ogrzewanie | Gehele vloerverwarming en warmtepomp |
| Ciepła woda | Aardwarmte |
| Dane katastralne | |
| Powierzchnia | 562 |
| Struktura własnościowa | Volle eigendom |
| Przestrzeń na zewnątrz | |
| Lokalizacja | Aan drukke weg, in centrum en vrij uitzicht |
| Ogród | Achtertuin en zijtuin |
| Dodatkowe rozmieszczenie | |
| Magazyn na zewnątrz | Inpandig |
| Przechowywalnia | Volledig gesoleerd |
| Garaż |
Podaj kilka danych, aby za darmo sprawdzić jaką maksymalną kwotę kredytu hipotecznego możesz otrzymać.