
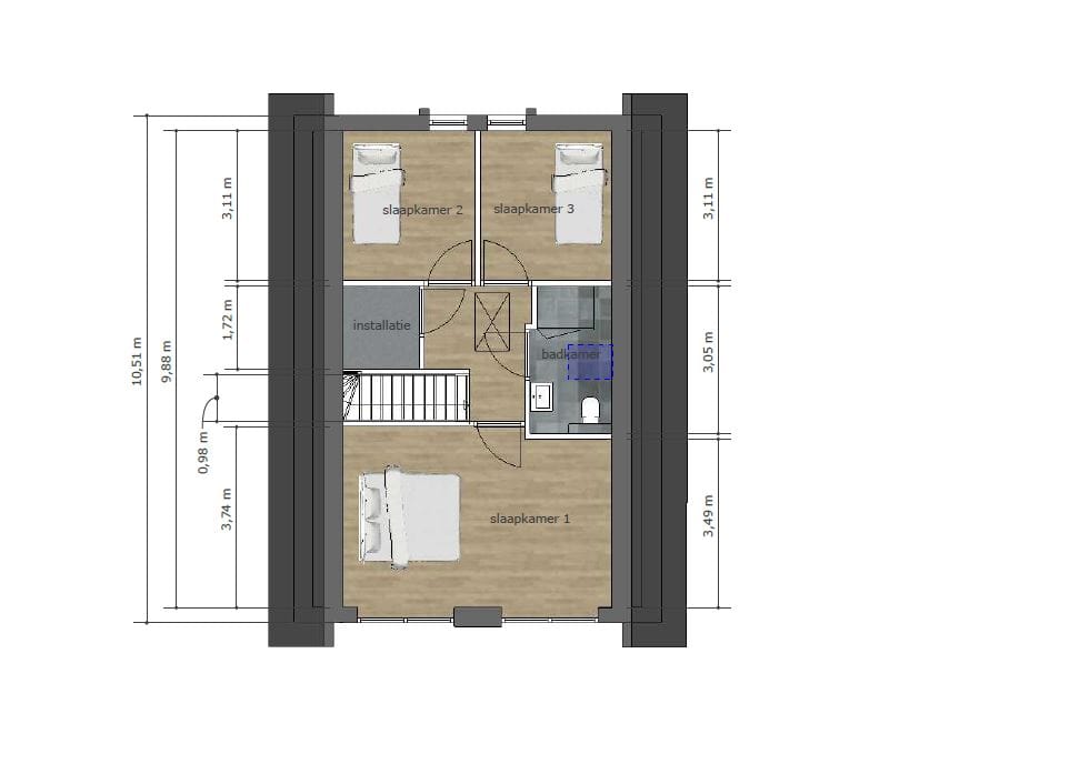
Op het terrein van Bakkersland bieden wij in samenwerking met EsbiHuis deze vrijstaande woning aan, deze woning kan gebouwd worden op 1 van de 8 vrije kavels op het terrein. Indeling woningtype 3: begane grond: hal met toilet, meterkast en trapopgang, woonkamer met open keuken met tuindeuren, bijkeuken met achteringang. 1e verdieping: overloop, 3 slaapkamers, badkamer met dakraam en voorzien van toilet, douche en wastafel, installatieruimte. Let op! De genoemde koopsom is exclusief kavel en meerwerkkosten. De kavelprijzen zijn als volgt: Kavel 1 verkocht Kavel 2 135.000 v.o.n. perceeloppervlakte: 465 m2 Kavel 3 verkocht Kavel 4 verkocht Kavel 5 165.000 v.o.n. perceeloppervlakte: 630 m2 Kavel 6 165.000 v.o.n. perceeloppervlakte: 630 m2 Kavel 7 177.500 v.o.n. perceeloppervlakte: 661 m2 Kavel 8 199.000 v.o.n. perceeloppervlakte: 756 m2
| Ogólne informacje | |
| Cena | 399.800 € |
| Status | dostępny |
| akceptacja | In overleg |
| Nieruchomość | |
| Rodzaj | Eengezinswoning, vrijstaande woning |
| Rodzaj budownictwa | Nieuwbouw |
| Rok budowy | 2025 |
| Rodzaj dachu | Zadeldak bedekt met pannen |
| Powierzchnie i zawartość | |
| Powierzchnia | 120 m2 |
| Cała powierzchnia | 370 m2 |
| Podział | |
| Ilość pokoi | 4 kamers (3 slaapkamers) |
| Ilość łazienek | 1 badkamer en 1 apart toilet |
| Wyposażenie łazienki | Douche, toilet, en wastafel |
| Ilość pięter | 2 woonlagen |
| Wyposażenie | Dakraam en mechanische ventilatie |
| Energia | |
| Typ | Niet |
| Izolacja | Volledig gesoleerd |
| Ogrzewanie | Elektrische verwarming, gedeeltelijke vloerverwarming en warmtepomp |
| Ciepła woda | Elektrische boiler |
| Dane katastralne | |
| Powierzchnia | 1 |
| Przestrzeń na zewnątrz | |
| Lokalizacja | Aan rustige weg |
| Ogród | Tuin rondom |
| Dodatkowe rozmieszczenie |
| Garaż |
Podaj kilka danych, aby za darmo sprawdzić jaką maksymalną kwotę kredytu hipotecznego możesz otrzymać.