
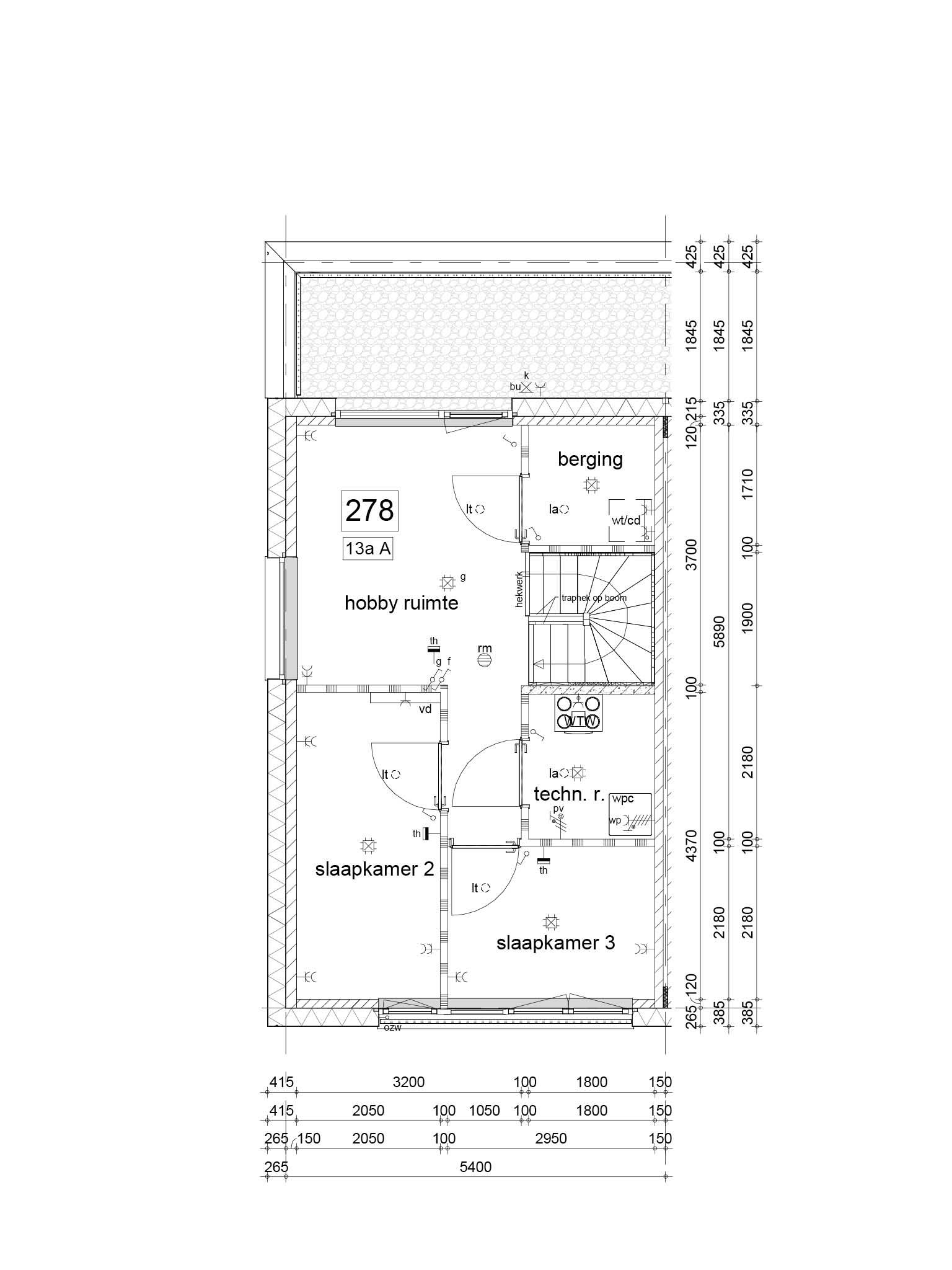
BOUW GAAT STARTEN! Plan Holenkwartier fase 2B te Hoorn Gerhard Lckensstraat 4 Robuuste binnenstadswoning met eigen parkeerplaats in belendend appartementengebouw. Indeling Begane grond: Ruime hal, toilet met wandcloset, (eet)keuken met mogelijkheid van kookeiland, riante zithoek met vide en grote schuifpui naar de achtertuin met berging. Open trap naar de verdiepingen. Eerste verdieping: 2 slaapkamers, badkamer met douche, wastafel en mogelijkheid voor een ligbad, afzonderlijke 2e toilet. Tweede verdieping: 2 slaapkamers en technische ruimte en hobbykamer met deur naar het balkon. Situering binnen de Hoornse ring nabij supermarkt, uitvalswegen en sportpark. Verwarming en warmwater voorziening via een (aard)warmtenet. Diverse opties mogelijk, er is reeds gekozen de vide te laten vervallen en de woning te voorzien van een trapkast en buitenkraan. Meerwerk kosten 1.850,00 De bouw start binnenkort, indicatieve oplevering voorrond de zomer van 2027. Koopaanneemsom van EUR 595.000,-- Excl. verplicht meerwerk Schrijf je nu in via de projectwebsite
| Ogólne informacje | |
| Cena | 595.000 € |
| Status | dostępny |
| akceptacja | In overleg |
| Nieruchomość | |
| Rodzaj | Eengezinswoning, hoekwoning |
| Rodzaj budownictwa | Nieuwbouw |
| Rok budowy | 2026 |
| Rodzaj dachu | Plat dak |
| Atesty budowlane | Woningborg Garantiecertificaat |
| Powierzchnie i zawartość | |
| Powierzchnia | 147 m2 |
| Powierzchnia działki | 104 m2 |
| Cała powierzchnia | 568 m2 |
| Podział | |
| Ilość pokoi | 6 kamers (3 slaapkamers) |
| Ilość łazienek | 1 badkamer en 2 aparte toiletten |
| Wyposażenie łazienki | Douche en wastafel |
| Ilość pięter | 2 woonlagen en een zolder |
| Wyposażenie | Balansventilatie en glasvezelkabel |
| Energia | |
| Typ | A+++ |
| Izolacja | Volledig gesoleerd |
| Ogrzewanie | Stadsverwarming en gehele vloerverwarming |
| Ciepła woda | Elektrische boiler (huur) en stadsverwarming |
| Dane katastralne | |
| Powierzchnia | 104 |
| Przestrzeń na zewnątrz | |
| Lokalizacja | In woonwijk |
| Ogród | Achtertuin |
| Balkon/taras | Dakterras aanwezig |
| Podwórko na zewnątrz | 39 m2 (7,00 meter diep en 5,60 meter breed) |
| Ekspozycja ogrodowa | 39 m2 (7,00 meter diep en 5,60 meter breed) |
| Dodatkowe rozmieszczenie | |
| Magazyn na zewnątrz | Vrijstaande houten berging |
| Przechowywalnia | Geen isolatie |
| Wyposażenie | Elektra |
| Garaż |
Podaj kilka danych, aby za darmo sprawdzić jaką maksymalną kwotę kredytu hipotecznego możesz otrzymać.