
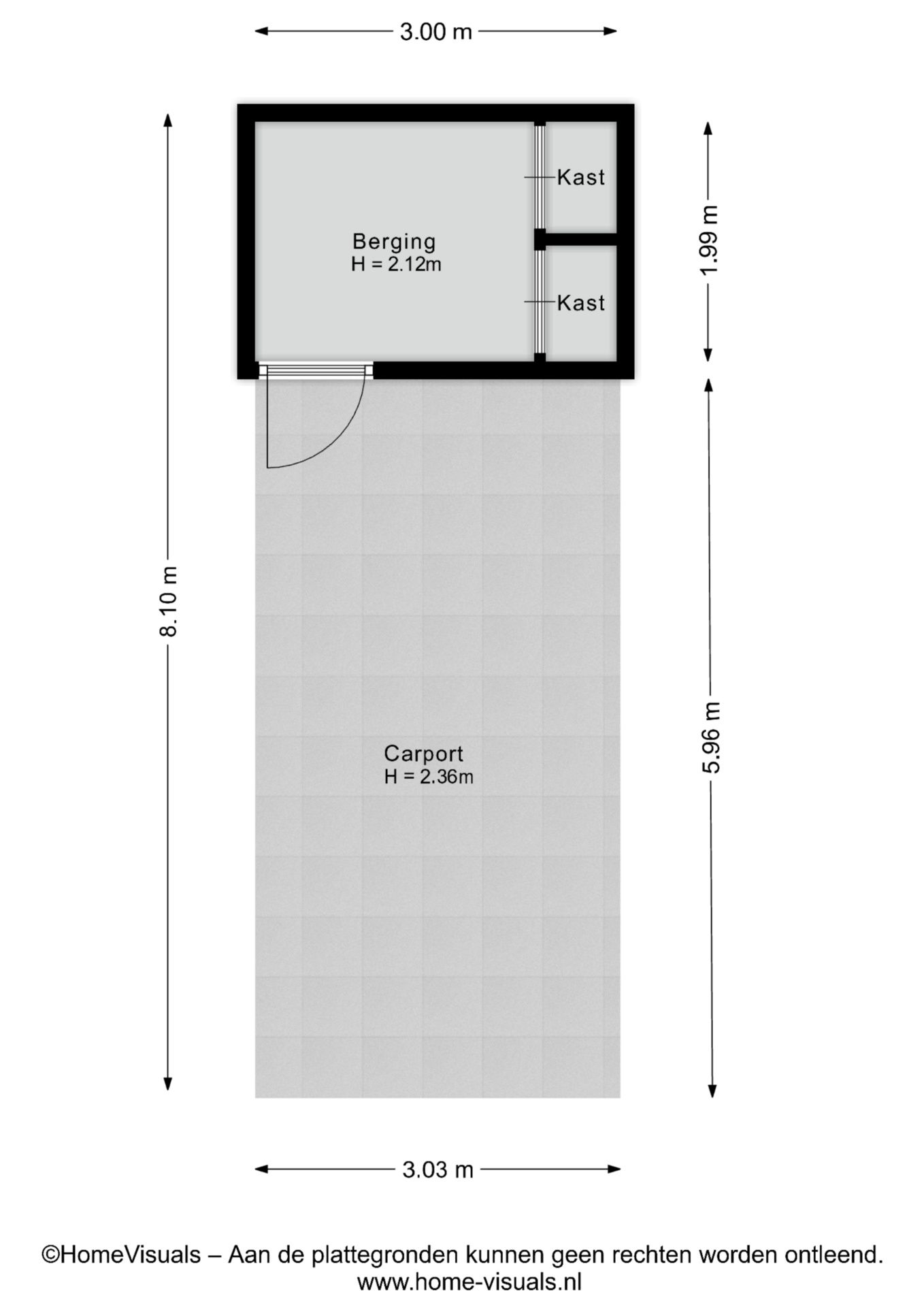
Op een van de mooiste plekken in gebouw Vivaldi ligt dit keurig onderhouden en lichte 3-kamer appartement. Het appartement bevindt zich op de tweede en tevens bovenste verdieping, op een prachtige hoeklocatie met veel privacy. Vanaf het ruime balkon op het zuiden kijk je mooi weg over de omgeving en geniet je de hele dag van de zon. Het kleinschalige complex ligt bovendien op korte loopafstand van het dorpscentrum en nabij het Kotermeer, een heerlijke plek om te wandelen en recreren. De woning beschikt over een eigen carport met aansluitend een stenen berging met elektra. Indeling: Hal en gang, in 2024 opgeknapt en netjes afgewerkt. Ruime, lichte woonkamer met toegang tot het zonnige balkon. De open keuken is voorzien van een hoekopstelling met inbouwapparatuur. Het appartement biedt twee slaapkamers met schuifwandkasten, waarvan een van circa 13 m2 en een van circa 7 m2. De badkamer beschikt over een douchecabine, badmeubel, toilet, designradiator en wasmachineaansluiting. Daarnaast is er een praktische inpandige berging aanwezig, waar desgewenst eenvoudig weer een separaat toilet kan worden gerealiseerd. Bijzonderheden: - Lift en videofoon aanwezig; - Voorzien van glasvezel en kabelaansluiting; - Gelegen op loopafstand van het centrum; - Ruim balkon op het zuiden gelegen; - Eigen carport met aangebouwde berging; - Servicekosten 2026: 116,70 per maand.
| Ogólne informacje | |
| Cena | 309.000 € |
| Status | Sprzedany |
| akceptacja | In overleg |
| Nieruchomość | |
| Rodzaj budownictwa | Bestaande bouw |
| Typ mieszkania | Galerijflat (appartement) |
| Rok budowy | 1996 |
| Rodzaj dachu | Plat dak |
| Powierzchnie i zawartość | |
| Powierzchnia | 87 m2 |
| powierzchnia na zewnątrz należąca do budynku | 13 m2 |
| Pomieszczenie na zewnątrz | 6 m2 |
| Cała powierzchnia | 264 m2 |
| Podział | |
| Ilość pokoi | 3 kamers (2 slaapkamers) |
| Ilość łazienek | 1 badkamer |
| Wyposażenie łazienki | Douche, toilet, en wastafelmeubel |
| Ilość pięter | 3 woonlagen |
| Usytuowany | 3e woonlaag |
| Wyposażenie | Glasvezelkabel, lift, mechanische ventilatie, natuurlijke ventilatie, en TV kabel |
| Energia | |
| Typ | B |
| Izolacja | Dakisolatie, dubbel glas, muurisolatie en vloerisolatie |
| Ogrzewanie | Cv-ketel en elektrische verwarming |
| Ciepła woda | Cv-ketel |
| bojler | Intergas HR-c (gas gestookt combiketel uit 2018, eigendom) |
| Dane katastralne | |
| Struktura własnościowa | Volle eigendom |
| Przestrzeń na zewnątrz | |
| Lokalizacja | In woonwijk en vrij uitzicht |
| Balkon/taras | Balkon aanwezig |
| Dodatkowe rozmieszczenie | |
| Magazyn na zewnątrz | Aangebouwde stenen berging |
| Przechowywalnia | Geen isolatie |
| Wyposażenie | Elektra |
| Garaż | |
| Typ | Carport |
| Lista spółdzielni mieszkaniowej | |
| Rejestracja w KVK | Ja |
| Coroczne zebranie | Ja |
| Regularane składki | Ja ( 97,63 per maand) |
| Rezerwowy fundusz obecny | Ja |
| Plan konserwacji | Ja |
| Ubezpieczenie na zewnętrzną część domu | Ja |
Podaj kilka danych, aby za darmo sprawdzić jaką maksymalną kwotę kredytu hipotecznego możesz otrzymać.