Ładowanie strony....
Ładowanie strony....

Mr. Troelstrastraat 51 Dostępny

Lokalizacja: 3131 HR Vlaardingen

Cena: 275.000 €

Opis

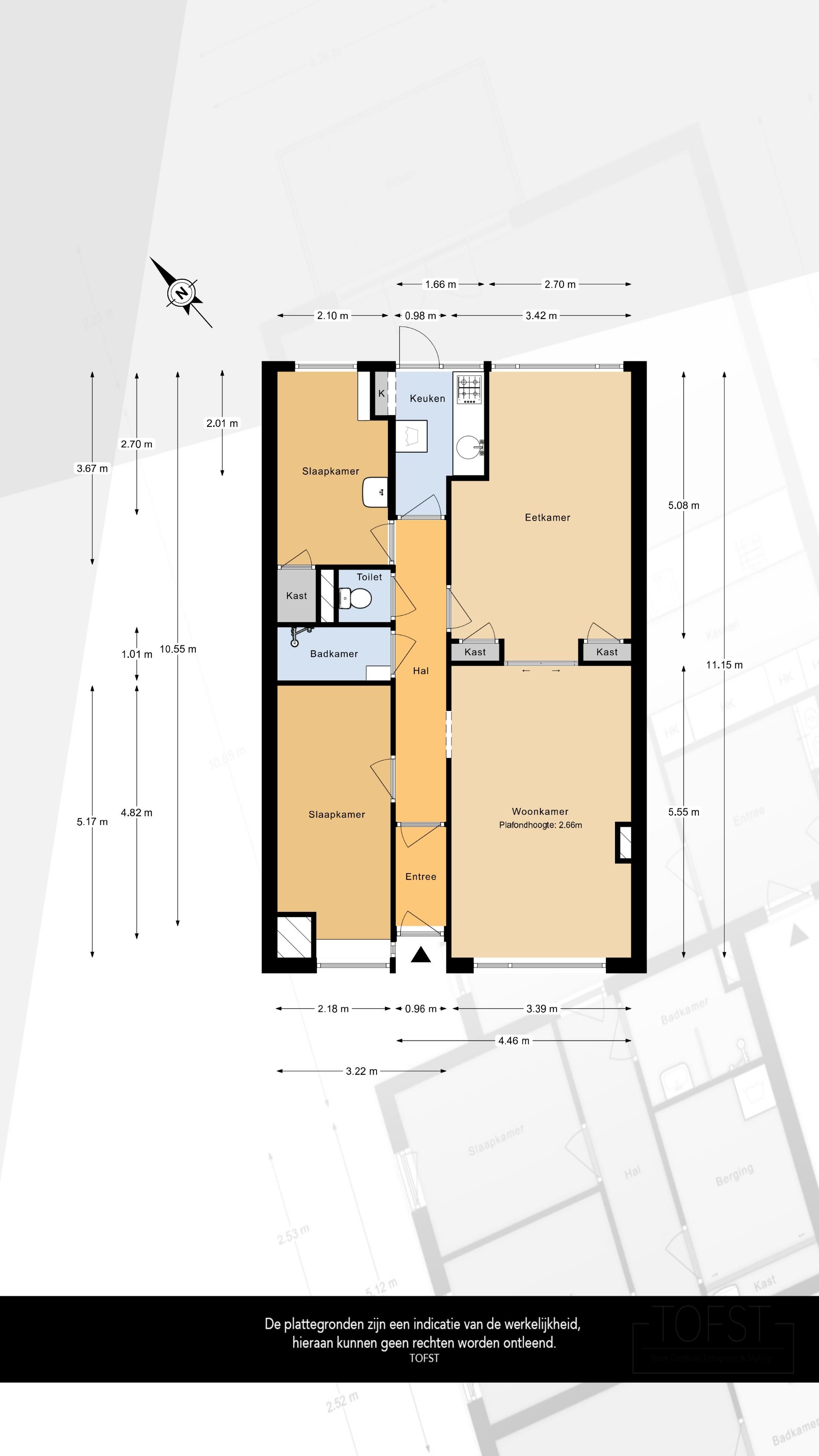
Ben je op zoek naar een woning waar je jouw eigen stempel op kunt drukken, midden in de gezellige Marktbuurt en op loopafstand van het bruisende centrum? Dan is deze karakteristieke 3-kamer benedenwoning met heerlijke achtertuin precies wat je zoekt! De woning heeft alles gelijkvloers: een charmante kamer-en-suite woonkamer van maar liefst 36 m2 met originele schuifdeuren, 2 fijne slaapkamers en te moderniseren badkamer met toilet en keuken. Echt uniek is de diepe en zonnige achtertuin van ruim 13 meter! Met 96 m2 aan buitenruimte, een eigen berging n achterom kun je hier jouw droomtuin creren: loungen, tuinieren, spelen of barbecuen alles kan. De woning is gebouwd in 1938, staat op eigen grond en biedt volop mogelijkheden om er een sfeervolle, moderne benedenwoning van te maken die helemaal bij jouw stijl past. De ligging is perfect: rustig, maar toch vlak bij alles wat je nodig hebt. Je loopt zo naar het winkelcentrum, de bioscoop, het theater, het zwembad en de gezellige horeca aan de Markt en in het centrum. Voor natuur en ontspanning ben je binnen een paar minuten in De Broekpolder of langs De Vaart. Met metro, bus en uitvalswegen (A4A20) om de hoek ben je bovendien in no-time in Rotterdam, Delft of op Hoek van Holland Strand. Kortom: een ideale starterswoning met karakter, veel ruimte en een fantastische tuin klaar om door jou omgetoverd te worden tot een heerlijk thuis! Indeling Voortuin van circa 16 m2 met ruimte voor een zitje op het zonnige zuidwesten of voor het plaatsen van een bakfiets. Entree van de woning met granieten stoepje, ideaal onder een luifel. Tochthal met aansluitend de ganghal. Ruime woonkamer in sfeervolle kamer-en-suiteopstelling van circa 36 m2, voorzien van dubbele schuifdeuren en vaste kasten tussen de voor- en achterkamer. Aan de achterzijde bevindt zich de eenvoudige maar nette keuken van circa 4 m2, uitgerust met een 4-pits gaskookplaat, spoelbak, opstelplaats voor de wasmachine en een deur naar de achtertuin. Slaapkamer 1 aan de voorzijde, circa 10,5 m2, met meterkast. Slaapkamer 2 aan de achterzijde, circa 8 m2, met wastafel en vaste kast. Eenvoudige badkamer van circa 2 m2, voorzien van een inloopdouche en gedeeltelijke betegeling. Separaat toilet, eveneens gedeeltelijk betegeld en voorzien van natuurlijke ventilatie. Riante achtertuin van 13 meter diep, in totaal circa 96 m2. Houten berging van circa 5 m2 en achterom. Bijzonderheden - Karakteristieke 3 a 4 kamer benedenwoning; - Woonoppervlakte 73 m2 (Volgens de meetinstructie); - Kamer-en-suite woonkamer circa 36 m2 met dubbele deuren; - Achtertuin op het noordoosten van circa 96 m2 met berging en achterom; - 2 goede slaapkamers waarvan de grootste met sfeervolle erker; - Gebouwd in 1938 en gelegen op eigen grond; - Ligging in de geliefde marktbuurt nabij het winkelcentrum met horeca, bioscoop, casino, theater de Stadsgehoorzaal; - Maar ook voldoende recreatie in op loopafstand met zwembad de Kulk en De Broekpolder met De Vaart; - Goede scholen in de buurt, OV als bus op loopafstand en uitvalswegen als de A4 en de A20 om binnen 20 minuten in Rotterdam, Delft of Hoek van Holland uit te komen; - Ouderdomsclausule, opknapclausule, asbestclausule en niet door eigenaar zelf bewoond clausule van toepassing; - Vaste notaris voorbehouden aan de verkopende partij; - Oplevering in overleg. Overige Huis kopen? Neem uw eigen NVM Aankoopmakelaar mee! Download nu via de brochure van deze woning. Een daadwerkelijke koopovereenkomst komt pas tot stand nadat beide partijen de schriftelijke overeenkomst hebben ondertekend. Toelichtingsclausule Meetinstructie De Meetinstructie is gebaseerd op de NEN2580. De Meetinstructie is bedoeld om een meer eenduidige manier van meten toe te passen voor het geven van een indicatie van de gebruiksoppervlakte. De Meetinstructie sluit verschillen in meetuitkomsten niet volledig uit, door bijvoorbeeld interpretatieverschillen, afrondingen of beperkingen bij het uitvoeren van de meting. Nadrukkelijk zij vermeld, dat deze vrijblijvende informatieverstrekking niet als een aanbieding of een offerte mag worden beschouwd. Aan deze gegevens kunnen geen rechten worden ontleend.

Zobacz opis w języku polskim

Ogólne informacje
Cena 275.000 €
Status dostępny
akceptacja In overleg
Nieruchomość
Rodzaj budownictwa Bestaande bouw
Typ mieszkania Benedenwoning (appartement)
Rok budowy 1938
Rodzaj dachu Plat dak bedekt met bitumineuze dakbedekking
Specyficzna budowla Kluswoning
Powierzchnie i zawartość
Powierzchnia 73 m2
powierzchnia na zewnątrz należąca do budynku 7 m2
Pomieszczenie na zewnątrz 5 m2
Cała powierzchnia 238 m2
Podział
Ilość pokoi 3 kamers (2 slaapkamers)
Ilość łazienek 1 badkamer
Wyposażenie łazienki Inloopdouche
Ilość pięter 1 woonlaag
Usytuowany Begane grond
Energia
Typ G
Dane katastralne
Struktura własnościowa Volle eigendom
Przestrzeń na zewnątrz
Lokalizacja Beschutte ligging, in centrum en in woonwijk
Ogród Achtertuin en voortuin
Podwórko na zewnątrz 95 m2 (13,69 meter diep en 7,00 meter breed)
Ekspozycja ogrodowa 95 m2 (13,69 meter diep en 7,00 meter breed)
Dodatkowe rozmieszczenie
Magazyn na zewnątrz Aangebouwde houten berging
Garaż
Lista spółdzielni mieszkaniowej
Rejestracja w KVK Nee
Coroczne zebranie Nee
Regularane składki Nee
Rezerwowy fundusz obecny Nee
Plan konserwacji Nee
Ubezpieczenie na zewnętrzną część domu Ja
Skontaktuj się z nami
Jesteś zainteresowany nieruchomością?
Napisz do nas

Kalkulator zdolności kredytowej

Podaj kilka danych, aby za darmo sprawdzić jaką maksymalną kwotę kredytu hipotecznego możesz otrzymać.

OBLICZ ZDOLNOŚĆ KREDYTOWĄ