Ładowanie strony....
Ładowanie strony....

Weidemolen 21 Sprzedany

Lokalizacja: 1733 PA Nieuwe Niedorp

Cena: 399.000 €

Opis

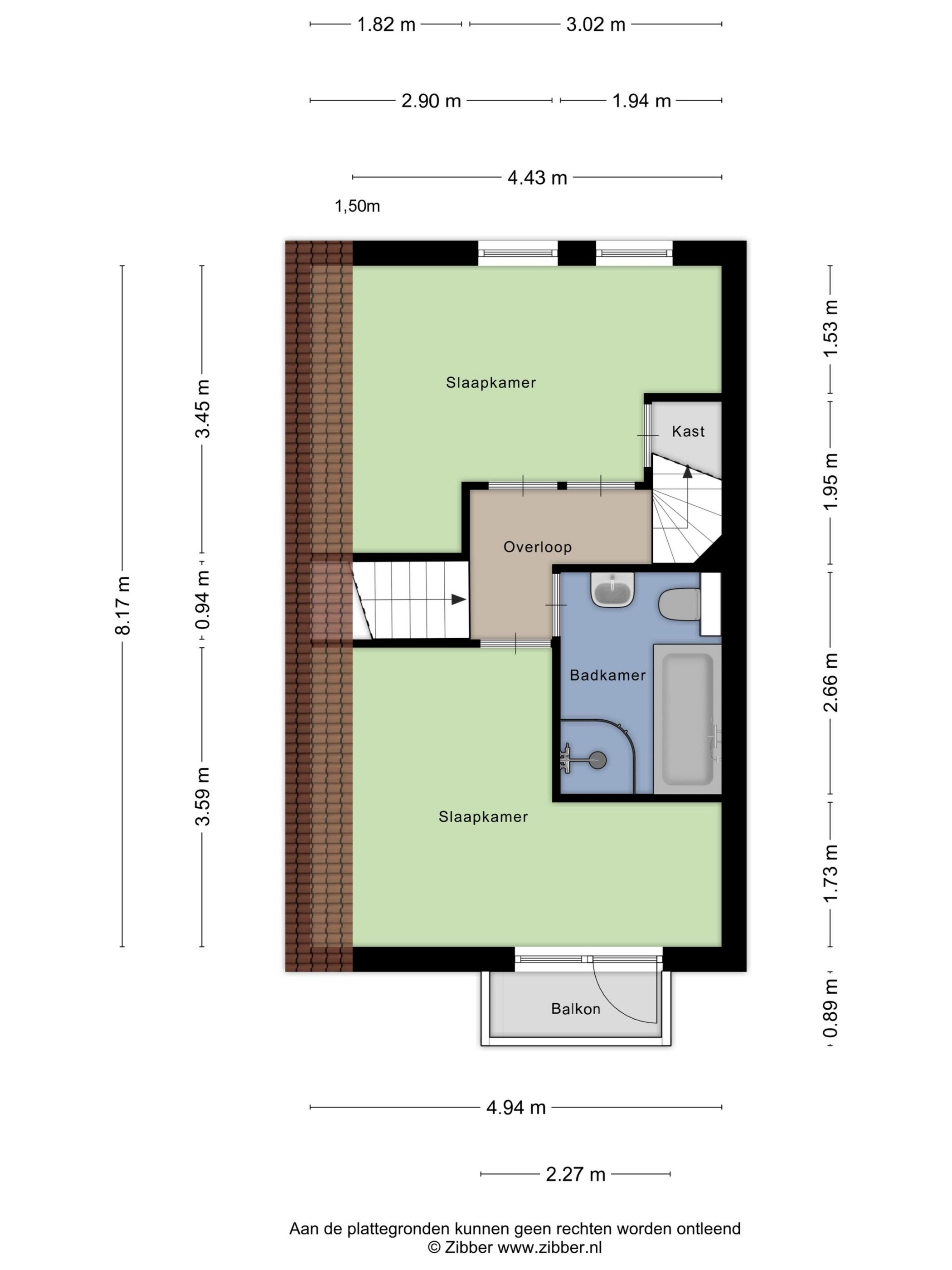
In het geliefde Nieuwe Niedorp staat deze fantastische twee-onder-n-kapwoning te koop, een ruime en verzorgde gezinswoning uit 1995 die direct opvalt door haar fraaie uitstraling, het karakteristieke balkon aan de voorzijde en de praktische indeling. Met een woonoppervlakte van 97 m2, een royale inhoud van 409 m en een perceel van 255 m2 is dit een fijn thuis voor iedereen die houdt van comfort, ruimte en een groene omgeving. De woning wordt bovendien vergezeld door een grote garage waarvan de dakbedekking circa zeven jaar geleden vernieuwd is, en de buitenkozijnen zijn in 2025 nog geschilderd. Dit alles maakt dat je hier zorgeloos kunt binnenstappen. Bij aankomst valt direct de eigen oprit op, een prettige voorziening die niet alleen gemak biedt, maar de woning ook een statige indruk geeft. De entree leidt naar een nette hal met trapopgang en een keurig betegeld toilet. De begane grond, net als de eerste en tweede verdieping, is uitgerust met betonnen vloeren, wat een solide basis vormt voor iedere woonstijl. De woonkamer bevindt zich aan de voorzijde en profiteert optimaal van het licht dat binnenvalt. De ruimte voelt aangenaam en uitnodigend, een prettige plek om te ontspannen of gezellig samen te zijn. Aan de achterzijde bevindt zich de keuken, iets compacter van formaat, maar efficint ingedeeld en prima bruikbaar voor dagelijks koken. Direct aansluitend ligt de bijkeuken, een praktische ruimte waar je extra bergruimte hebt en vanuit waar je binnendoor toegang krijgt tot de garage. Op de eerste verdieping vind je twee ruime slaapkamers, waar er oorspronkelijk drie waren. Dit biedt ruime mogelijkheden: een extra grote slaapkamer, een walk-in closet of een werkkamer behoren allemaal tot de opties. De badkamer is eveneens op deze verdieping gesitueerd en biedt alle comfort. Via een vaste trap bereik je de tweede verdieping, een bergzolder die dankzij de hoogte en mogelijkheden eenvoudig kan worden omgevormd tot een extra slaapkamer of een prettig thuiskantoor. De achtertuin is een van de grotere pluspunten van deze woning. Gelegen op het zuiden en westen, geniet je hier vrijwel de hele dag van de zon. Het is een heerlijke tuin waar je in alle rust kunt ontspannen, kinderen naar hartenlust kunnen spelen en waar je volop mogelijkheden hebt om je groene vingers de vrije loop te laten. Dankzij de ligging en de grootte voelt dit echt als een verlengstuk van de woonkamer op warme dagen. Nieuwe Niedorp staat bekend als een dorp waar het fijne wonen centraal staat. Met een luxe boodschappencentrum, diverse winkels, basisscholen, sportverenigingen en tal van recreatiemogelijkheden is alles binnen handbereik. De omgeving is ideaal voor fietsers en natuurliefhebbers, met prachtige routes richting het openluchtzwembad in Waarland, de gezellige stad Schagen of het historische Medemblik met zijn sfeervolle haven. Ook sportievelingen komen aan hun trekken dankzij de nabijgelegen 18-holes golfbaan, mountainbikeparcours en de vele vaarmogelijkheden in de regio. De ligging nabij de A7 zorgt ervoor dat steden als Amsterdam en Leeuwarden uitstekend bereikbaar zijn, wat deze plek eveneens aantrekkelijk maakt voor forenzen. Deze woning biedt een ideale combinatie van comfortabel wonen, een fijne omgeving en uitstekende voorzieningen. Een plek waar je direct voelt dat alles klopt. Ontdek zelf de charme van deze twee-onder-n-kapper en laat je verrassen door de ruimte, de lichtinval en de rust die deze woning te bieden heeft.

Zobacz opis w języku polskim

Ogólne informacje
Cena 399.000 €
Status Sprzedany
akceptacja In overleg
Nieruchomość
Rodzaj Eengezinswoning, 2-onder-1-kapwoning
Rodzaj budownictwa Bestaande bouw
Rok budowy 1995
Powierzchnie i zawartość
Powierzchnia 97 m2
Pozostałe miejsca wewnątrz 18 m2
powierzchnia na zewnątrz należąca do budynku 2 m2
Pomieszczenie na zewnątrz 6 m2
Powierzchnia działki 255 m2
Cała powierzchnia 409 m2
Podział
Ilość pokoi 4 kamers (2 slaapkamers)
Ilość łazienek 1 badkamer en 1 apart toilet
Ilość pięter 3 woonlagen
Energia
Typ Niet
Dane katastralne
Powierzchnia 255
Struktura własnościowa Volle eigendom
Przestrzeń na zewnątrz
Ogród Achtertuin en voortuin
Podwórko na zewnątrz 72 m2 (9,00 meter diep en 8,00 meter breed)
Ekspozycja ogrodowa 72 m2 (9,00 meter diep en 8,00 meter breed)
Dodatkowe rozmieszczenie
Magazyn na zewnątrz Aangebouwde houten berging
Garaż
Wyposażenie Elektra
Typ Aangebouwde houten garage
Pojemność garażu 1 auto
Skontaktuj się z nami
Jesteś zainteresowany nieruchomością?
Napisz do nas

Kalkulator zdolności kredytowej

Podaj kilka danych, aby za darmo sprawdzić jaką maksymalną kwotę kredytu hipotecznego możesz otrzymać.

OBLICZ ZDOLNOŚĆ KREDYTOWĄ