
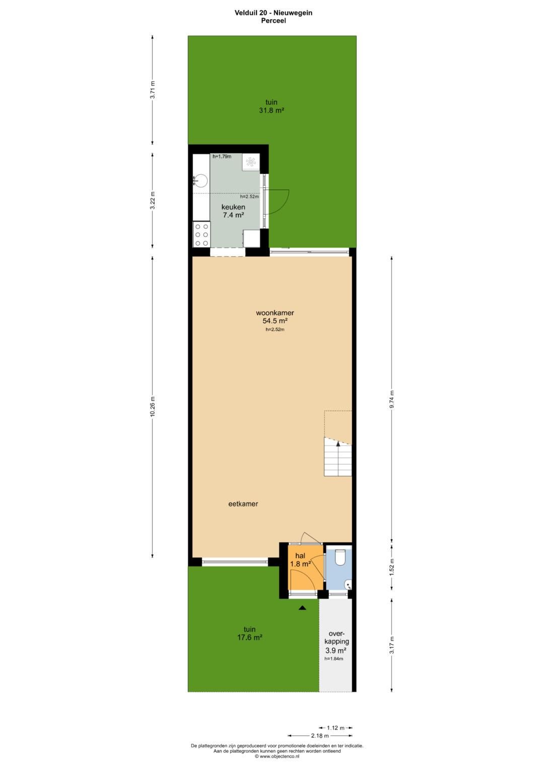
Sfeervolle, uitgebouwde eengezinswoning, gelegen op een heerlijk rustige en groene plek met aan de voor- en achterzijde veel ruimte en privacy. De woning is op de begane grond uitgebouwd en heeft daarmee een ruime woonkamer met een apart eetgedeelte. De keuken is in de voormalige berging ondergebracht. Aan de voorzijde is de woning gelegen aan een mooie vijverpartij; de straat is rustig: er komt alleen bestemmingsverkeer. De tuin grenst aan de achterzijde aan de Randijk en een park. Door de twee dakkapellen en de uitbouw is dit een zeer ruime woning geworden met een woonoppervlakte van maar liefst 129 m2. Door de kunststof kozijnen is er nauwelijks onderhoud; alleen de voordeur en openslaande deuren in de keuken zijn nog van hout. De locatie is in n woord geweldig! Indeling: Begane grond: Entree, hal, toilet, toegang naar de woonkamer. De woonkamer is maar liefst 54,5 m2 groot, met aan de voorzijde de plek van de eettafel waar je heerlijk zicht op de vijver hebt. Vanuit het zitgedeelte aan de achterzijde heb je mooi zicht op de bomen van het park en de knusse tuin. De keuken is in de voormalige berging geplaatst. Een open trap vanuit de woonkamer geeft toegang tot de verdieping. 1e verdieping: Overloop, drie slaapkamers van respectievelijk ca. 13 m2, 7 m2 en 9 m2. De badkamer heeft lichte tegels, een ligbad met (stort)douche, een wastafelmeubel met twee wasbakken en een tweede toilet. 2e verdieping: Overloop, voorzolder met bergruimte en de wasmachineaansluiting, welke ook een slaapkamer is (20,8 m2), en een vijfde slaapkamer van 10,2 m2. Speels gevormde slaapkamers, beiden met een dakkapel. Bijzonderheden: - Uitgebouwde eengezinswoning. - Woning is voorzien van 5 slaapkamers. - De woonkamer is echt heel ruim en op vele manieren in te delen. - Bijna geheel voorzien van kunststof kozijnen met isolatieglas. - In 2020 is de woning voorzien van nieuwe gevelbekleding (kunststof). - Woning is voorzien van 2 dakkapellen. - Gezellig aangelegde tuin met veel groen en in de voortuin een overkapping voor fietsen etc. - Prachtige ligging aan een rustige straat. - Achterzijde gelegen aan de Randijk en een ruim park. - Aan de voorzijde gelegen aan een vijverpartij. - Oplevering: in overleg.
| Ogólne informacje | |
| Cena | 475.000 € |
| Status | dostępny |
| akceptacja | In overleg |
| Nieruchomość | |
| Rodzaj | Eengezinswoning, tussenwoning |
| Rodzaj budownictwa | Bestaande bouw |
| Rok budowy | 1978 |
| Rodzaj dachu | Zadeldak bedekt met pannen |
| Atesty budowlane | Energie Prestatie Advies |
| Powierzchnie i zawartość | |
| Powierzchnia | 129 m2 |
| powierzchnia na zewnątrz należąca do budynku | 4 m2 |
| Powierzchnia działki | 134 m2 |
| Cała powierzchnia | 439 m2 |
| Podział | |
| Ilość pokoi | 6 kamers (5 slaapkamers) |
| Ilość łazienek | 1 badkamer en 1 apart toilet |
| Wyposażenie łazienki | Douche, dubbele wastafel, en toilet |
| Ilość pięter | 3 woonlagen |
| Wyposażenie | Mechanische ventilatie, natuurlijke ventilatie, en TV kabel |
| Energia | |
| Typ | B |
| Izolacja | Dakisolatie, muurisolatie en vloerisolatie |
| Ogrzewanie | Stadsverwarming |
| Ciepła woda | Doorstroomboiler |
| Dane katastralne | |
| Powierzchnia | 134 |
| Struktura własnościowa | Volle eigendom |
| Przestrzeń na zewnątrz | |
| Lokalizacja | In woonwijk |
| Ogród | Achtertuin en voortuin |
| Dodatkowe rozmieszczenie |
| Garaż |
Podaj kilka danych, aby za darmo sprawdzić jaką maksymalną kwotę kredytu hipotecznego możesz otrzymać.